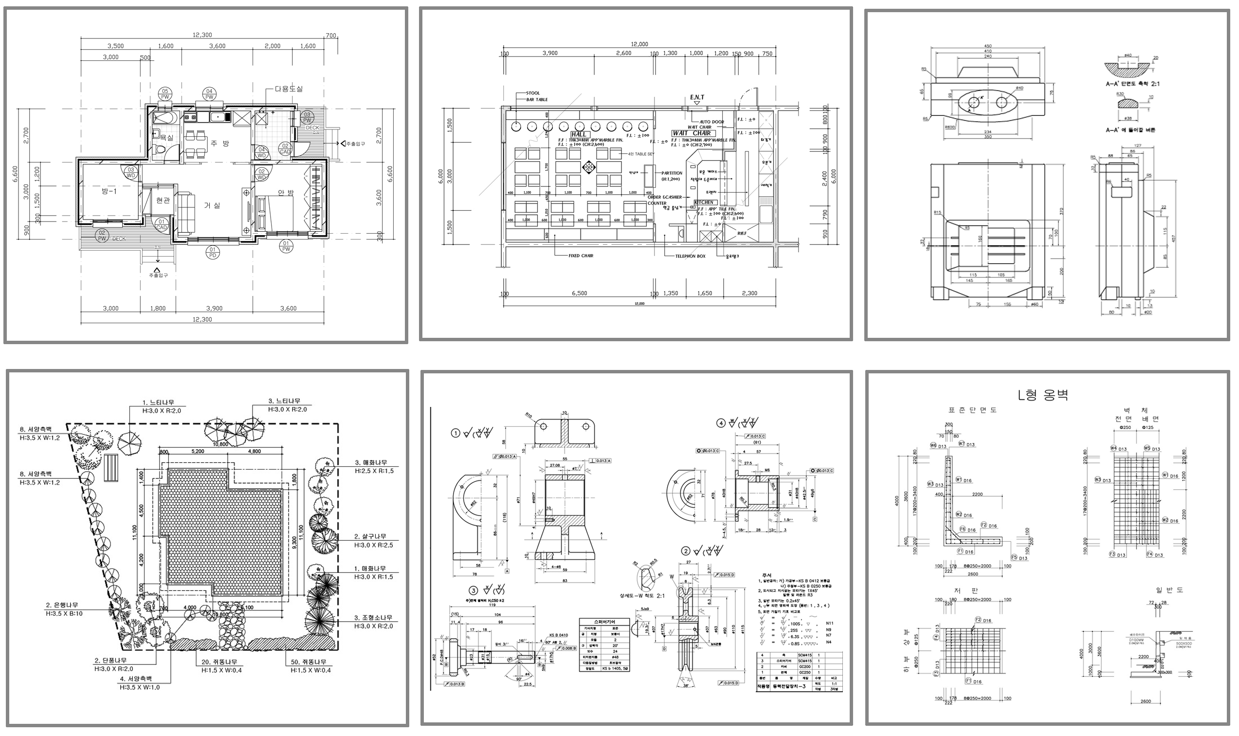
CAD를 활용한 2D도면작업

| 분류 | 국비지원과정(내일배움카드) > 기계설계 | 건축설계 | 
|---|---|
| 과정명 | CAD를 활용한 2D도면작업 [모집중] | 
| 교육기간 | 2025.11.17 ~ 2025.12.08 | 
| 시간·요일 | 19:00~22:00 (3시간) [월,화,수,목] | 
| 교육장소 | 402 | 
| 모집인원 | 20명 | 
컴퓨터 설계를 위해 반드시 익혀야 할 기본 프로그램인 AutoCAD를 익히는 과정으로 다음에 해당하시는 분들에게 꼭 추천합니다.
- 컴퓨터 설계를 하고자 마음은 먹었지만 아직 시작하지 못하시는 분
- 컴퓨터 설계를 하고는 있지만 항상 자신감을 가지고 있지 못하시는 분
- 컴퓨터 설계 관련 자격증을 취득하고자 하시는 분 - 짧은 시간에 컴퓨터 설계를 꼭 해야 하는 분(단, 한달정도는 투자해야함)
●수강신청대상 : 개강일 기준 국민내일배움카드 소지자(일부 국비지원) 또는 일반생 [국비지원 안되시는 분]
●국민내일배움카드 발급가능 대상자
1. 75세미만 구직자 2. 영세자영업자 3. 대규모 45세이상 근로자 및 비정규 근로자 4. 우선지원기업 일반근로자 5. 재학생(대학생-4년제 3학년부터 / 3년제-2학년부터 / 2년제-1학년부터) 등
●내일배움카드 소지자 : 수강료의 0%~55% 할인된 금액만 개강전에 내일배움카드로 결재(개인차 있음)
●일반수강생 : 카드결재, 무통장 입금, 현금결재
-AutoCAD 기본 명령 익히기
-AutoCAD 명령 활용하기 등
-2D도면작업 등
-AUtoCAD를 활용한 도면작업을 요하는 직종
-건축설계 분야, 기계설계 분야 등
-AutoCD기술자격시험 2급
-전산응용건축제도기능사
-전산응용기계제도기능사 등
